2BHK duplex floor plan design in DWG AutoCAD format
Description
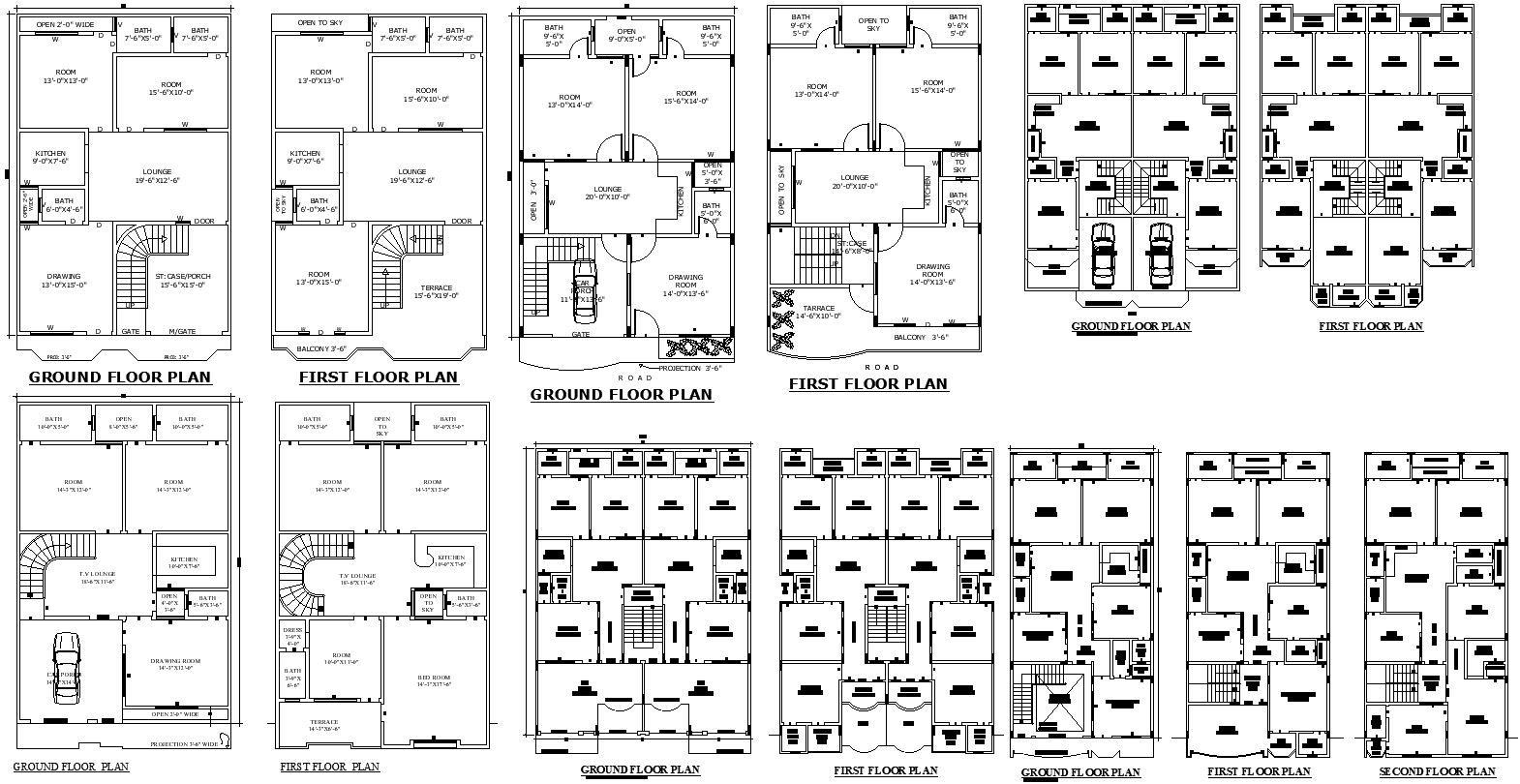
Download a detailed 2BHK duplex house plan in AutoCAD format. This DWG file offers a comprehensive layout of a stylish and functional two-bedroom duplex, designed with modern living in mind. Perfect for architects and home planners, the CAD drawing includes all essential details for construction and design. Access high-quality CAD files that provide a clear view of floor plans, room dimensions, and structural elements. Enhance your project with these precise and professional AutoCAD drawings, tailored to help you visualize and plan your dream home effortlessly.

Uploaded by:
Eiz
Luna

